Luksus rekkehus nær Portixol-stranden
€ 2.050.000Ref. MFP189C
Nybygd og stilfullt rekkehus i Molinar
Dette spennende boligprosjektet ligger i det sjarmerende nabolaget Molinar, rett på grensen til den populære bydelen Portixol. Prosjektet har en perfekt beliggenhet, bare en kort spasertur fra Portixols strandpromenade, som er omkranset av koselige kafeer og restauranter. Området har de siste årene utviklet seg til å bli et av øyas mest trendy nabolag. Molinar byr på en rolig og behagelig atmosfære ved sjøen, noe som gjør det til et ideelt sted å bo. Prosjektet består av syv rekkehus og forventes å være innflyttingsklart våren 2026.
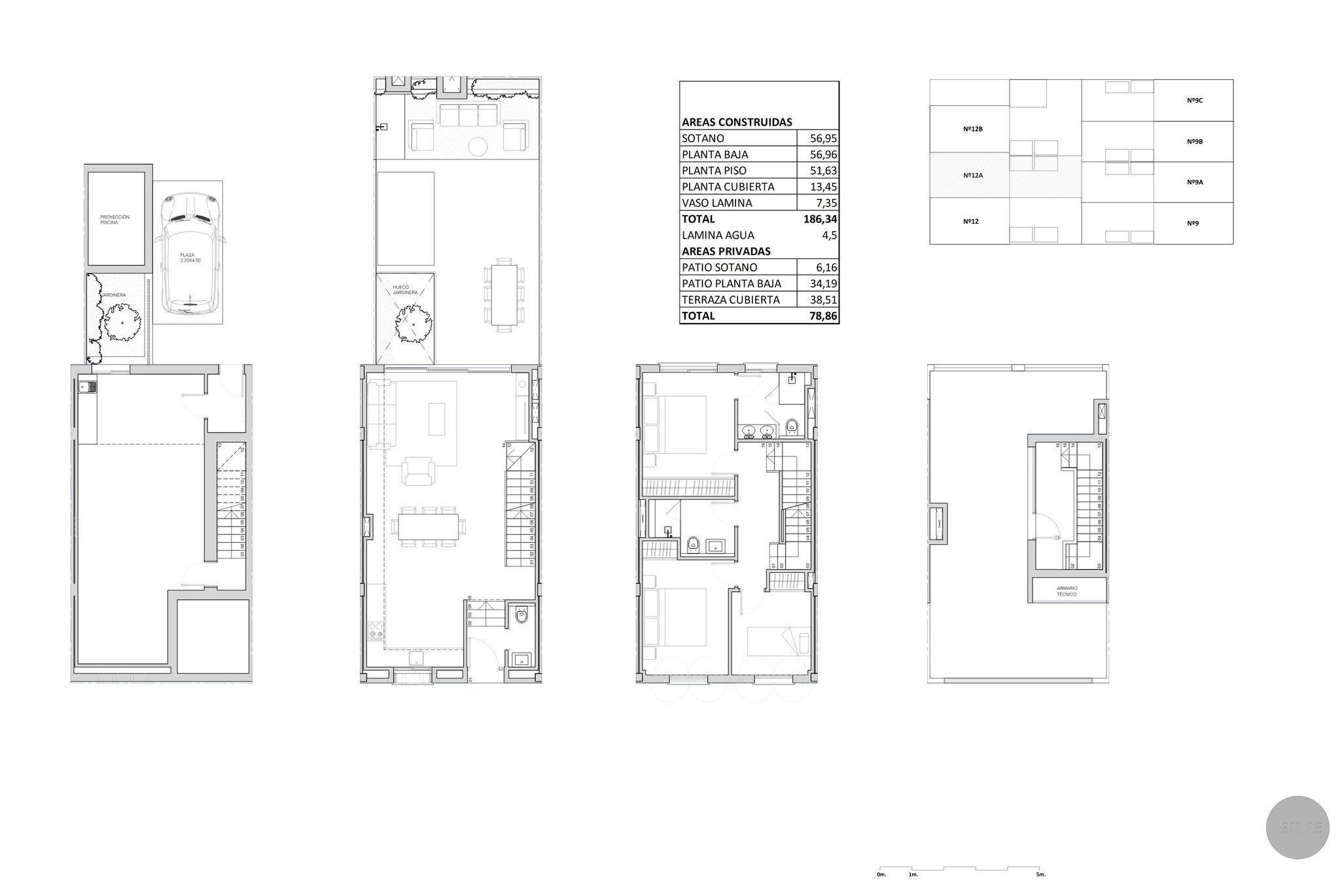
Dette rekkehuset har et boareal på 186 kvadratmeter, fordelt på tre etasjer, med tre soverom, hvorav ett med walk-in-closet, og tre bad, hvorav ett med eget bad. Den åpne planløsningen forbinder kjøkkenet sømløst med stue og spisestue, og med store vinduer, finish av høy kvalitet og et tidløst, rent design skaper det en lys og innbydende atmosfære. Det er også en romslig kjeller for ekstra lagringsplass.
Utendørs har eiendommen en privat hage på 34 kvadratmeter med basseng, og en nydelig takterrasse på 39 kvadratmeter med utsikt over Portixol og Middelhavet. Huset har også en integrert parkeringsplass med direkte tilgang fra kjelleren.
Ytterligere informasjon: Klimaanlegg, parkering, privat basseng, privat takterrasse, privat hage

Jan Hedengård
info@mallorcaresidencia.com
+34 971 22 08 68
